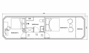
Vesta
VESTA
- Dimensiones: 9,5 m x 3,3 m x 3,2 m
- Superficie Total: 32 m2
- Superficie interna: 27,18 m2
- Baño Puerta: corrediza de vidrio templado, mueble de baño en madera de roble, lavabo con grifo de acero inoxidable, rociador de ducha integrado, inodoro inteligente, ducha: mampara en zona húmeda.
- Calefacción: calentador de baño + calentador de agua (50L, 2000W).
- Calefacción por suelo radiante.
- Sistema: cables calefactores de grafeno.
- Tecnología y confort: Gabinete de red/WiFi: de bajo voltaje.
- Aire acondicionado centralizado: 2 aires tipo Split.
